2024年7月2日15時許,大亞灣開發區西區街道冠華城桂香園20棟2203房發生1起觸電事故,致1人死亡。
2024年7月3日,惠州市安委辦對大亞灣西區文軒居(惠州市)裝飾有限公司“7·2”一般觸電事故進行掛牌督辦。2024年7月4日,大亞灣區管委會依法成立大亞灣開發區西區文軒居(惠州市)裝飾有限公司“7·2”一般觸電事故調查組(以下簡稱“7·2事故調查組”)對事故開展調查。
調查組嚴格按照《生產安全事故報告和調查處理條例》的規定,以及生產安全事故“四不放過”“科學嚴謹、依法依規、實事求是、注重實效”的原則在前期調查的基礎上認真對事故真相進行復核還原。通過對事故現場勘查、調閱相關檔案材料、詢問筆錄、事故原因分析、專家論證等多種方式進行調查,調查組現已查明事故發生經過和原因,認定了事故性質和責任,總結了事故的主要教訓,提出了事故防范措施建議,現將情況報告如下:
調查認定,大亞灣西區文軒居(惠州市)裝飾有限公司“7·2”一般觸電事故是一起因設備漏電導致的生產安全責任事故。
涉事故房屋為大亞灣開發區西區街道龍山一路66號冠華城桂香園20棟2203室。其戶型為二房二廳二衛二陽臺,戶內建筑面積約92.76平方米,業主聶輝與2024年6月4日委托文軒居(惠州市)裝飾有限公司(以下簡稱“文軒居公司”)進行室內裝修。
文軒居公司于2024年6月15日在小區物業單位辦理了“裝修施工許可證”的報備手續。6月16日進場進行裝修作業。
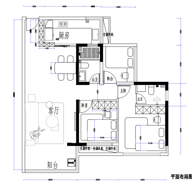
事故發生時,室內裝修作業屬于初步階段,已完成水電管線布設,基本完成大廳及房間的地板磚鋪設,正在噴涂墻面加固劑(俗稱“墻面封閉底漆/封底涂料”,用于墻面批刮膩子前的界面套膠加固處理)。該房屋平面布置見附圖1。
|
|
戶型效果示意圖 |
裝修平面布置示意圖 |
圖1涉事故房屋平面布置圖
文軒居公司,統一社會信用代碼:91441304MA5740FQ2U,法定代表人:蔡*文,成立日期:2021年09月07日,注冊地址:惠州大亞灣西區龍山一路桂香園商鋪8棟101號房,經營范圍:一般項目:工程管理服務;家具安裝和維修服務;園林綠化工程施工;土石方工程施工;建筑裝飾材料銷售;建筑用金屬配件銷售;照明器具銷售。許可項目:住宅室內裝飾裝修;建設工程設計。
惠州桂香園物業服務有限公司(以下簡稱“桂香園物業公司”),統一社會信用代碼:91441300MA4WG52FXK,法定代表人:姚*,成立日期:2017-04-25,注冊地址:惠州大亞灣西區龍山一路66號桂香園11棟1層15號房,經營范圍:一般項目:物業管理;機動車充電銷售;非居住房地產租賃;商業綜合體管理服務;市場營銷策劃。(除依法須經批準的項目外,憑營業執照依法自主開展經營活動)。
死者李*,男,年齡34歲,漢族,四川鄰水人,房屋裝修油漆工人。李*是文軒居公司法定代表人蔡*文安排對桂香園20棟2203室進行墻面加固劑噴涂作業的油漆工人。
2024年7月2日14時左右,文軒居公司泥水工查*德和同事萬*超正在房間內貼地腳線瓷磚,此時,當事人李*首次來到裝修現場查看房屋情況。當事人李*與兩名泥水工閑聊了一會后,下樓去搬來了其自帶的噴涂機,做好準備工作后,開始墻面加固劑噴涂作業;此時,當事人李*赤膊上半身在客廳區域作業,兩名泥水工在房間臥室區域鋪設地腳線。15時左右,泥水工查*德從房間臥室到客廳,看到當事人李*躺在客廳靠近陽臺位置的地面,手握噴涂機的噴槍,身體外觀無異常情況。泥水工查*德馬上呼叫了同事萬*超到客廳一起查看當事人李*的情況;泥水工查*德先是呼喊當事人李*,后又輕拍其臉,當事人李*均沒有反應。隨后,泥水工查*德去拿開當事人李*手中的噴槍,剛碰到噴槍時,感到有電流通過的手麻現象;查*德拿開噴槍后,立即跑到入戶門旁邊的用電開關箱位置,拔掉了噴涂機的插座線。15時05分,泥水工查*德撥打了120急救電話;在120電話的指導下,查*德和同事萬*超輪流為當事人李*做心肺復蘇;此過程中,查*德發現當事人李*胸口中間(噴槍頭先前與身體接觸區域)有小塊紅色的斑點。15時15分,泥水工查*德撥打了裝修公司現場負責人范*的微信電話,告知其油漆工倒在地上了、趕緊來現場。15時25分左右,120到現場并對當事人李*進行搶救,后經搶救無效宣告死亡。15時27分左右,泥水工查*德撥打了110報警;約5分鐘后,派出所民警到現場處置。
當事人李*被發現時,其仰臥躺在客廳西南角側、靠近陽臺,頭部大致朝北、腳朝南,頭部距離西側墻邊約1.0米、距離南側陽臺邊約1.4米,手握噴涂機的噴槍。見附圖2、附圖3。

圖2當事人被發現時位置
當事人李*在墻面噴涂作業使用一臺“高壓無氣噴涂機”,噴涂機為金屬外殼、電源插頭為三腳插,屬于I類電動工具,噴涂機一端由進料管連接到“加固劑”(加固劑為雨虹牌,J90彩色滲透型,黃色),其另一端由送料軟管連接“噴槍”,噴槍長0.49米、鋼質材料,送料軟管長12.3米、表面覆裹有涂料。該噴涂機屬于當事人自有機械設備。見附圖3。

圖3噴涂及噴槍圖片
當事人使用的電源為兩芯電纜線+地拖插座,插頭端用三腳插、只接兩芯線,無接地PE線,與噴涂機的三腳插頭不配套;該線從入戶電源開關插座盒接入后延伸至噴涂機旁邊,線長約11.0米。見附圖4。
|
|
地拖線接線及插座、插頭圖 |
地拖線布設走向示意圖(模擬還原) |
圖4噴涂機外接的兩芯地拖線圖
入戶電源為一相一零一地線,設置了PE線端子,設置了空氣開關作為斷路器,未設漏電保護器。從斷路器、PE線接線端引出的一相一零一地線,通過簡易的三根電線連接到旁邊的臨時開關插座盒,從PE線端子至插座盒的PE線處于斷裂狀態。見附圖5。
|
|
臨電開關設置情況(空氣開關) |
臨電開關及接線設置情況 |
圖5室內臨時用電開關及接線圖
現場有一個臨時用電專用開關箱(配電箱),該電箱系裝修施工單位在小區物業單位辦理裝修許可時提供,電箱完好、未接線、未使用過,箱內配有兩套齊全的斷路器(空氣開關)、漏電保護器和三孔插座。見附圖6。
|
|
圖6臨時用電專用開關箱(配電箱)圖片
2024年7月2日15時05分,文軒居公司裝修工查*德發現李*躺在客廳地上,對其呼喊無反應,隨即撥打120急救電話。
15時08分許,惠陽三和醫院120粵LZ196L救護車(隨車醫生:張*,隨車護士:梁*彬,出車司機:溫*強)出發趕赴現場處置。15時26分許,120到達現場對李*進行搶救。
15時31分許,大亞灣區公安分局新西派出所接報警情稱:在冠華城桂香園營銷中心(惠州大亞灣西區龍山一路66號)20棟2203,其稱有人死了,120在場檢查過了,倒地的那個人跟其不是一個工種的,其也不清楚。接報后,新西派出所立即組織副所長高*柏、輔警陳*和迅速前往現場處置;
15時44分許,大亞灣區公安分局新西派出所民警到達西區冠華城桂香園20棟2203房事故現場,120已在現場對死者李*進行急救,文軒居公司裝修工人查*德、萬*超及項目監理范*在現場;
15時57分許,文軒居公司法定代表人蔡*文趕到現場;
15時57分許,當事人李*(男,35歲,漢族,四川人)經惠陽三和醫院120醫護人員搶救無效后死亡;
16時許,大亞灣區公安分局新西派出所出勤民警通知刑偵大隊法醫到場開展現場勘查,并通知惠東殯儀館到場處理尸體;
16時14分許,惠陽三和醫院120粵LZ196L救護車返院;
16時50分許,當事人李*的妹妹李*到達現場;
17時05分,經法醫現場尸檢,死者胸前部有類似電流斑的損傷,其余未見損傷,懷疑觸電死亡;
17時10分,大亞灣區公安分局新西派出所副所長高*柏將該情況電話報告西區街道辦事處應急值班人員周*安;
17時11分許,惠東殯儀館粵L286D接運車輛(接運人:曾*文)抵達事故現場;
17時35分,大亞灣區公安分局新西派出所民警將相關人員帶回派出所進一步調查;
17時42分許,大亞灣區公安分局新西派出所處置警力離開事故現場;
17時51分許,惠東殯儀館接運人員離開事故現場,將死者李偉尸體運往殯儀館存放;
19時05分許,大亞灣區總值班室接西區街道辦事處粵政易報告:下午5點10分,西區街道辦事處值班人員接新西派出所高警官來電,稱桂香園20棟2203室內發現一名男子昏迷不醒,疑似觸電,具體情況待進一步核實;
19時06分許,大亞灣區總值班室致電區公安分局核實情況:是有該警情,該男子已觸電身亡;核實后,區總值班室立即調度區應急管理局、區公安分局、西區街道辦事處、區城鄉建設和綜合執法局、區政法信訪辦、區綜合辦網信組等相關單位進行處置。
19時42分許,區應急管理局、西區街道辦事處等人員相繼趕到新西派出所向文軒居公司相關人員了解事故情況。
20時40分許,區公安分局、區應急管理局、區城鄉建設和綜合執法局、西區街道辦事處及文軒居公司法定代表人蔡*文、現場監理范*到事故現場做初步勘察。
1.大亞灣區總值班室接到事故報告后,立即調度區屬單位趕赴事故現場開展處置,同時向惠州市委市政府總值班室報送突發事件信息,應急響應及時,調度準確、應急處置措施得當,突發事件信息報送工作及時、有效。
2.事故發生后,大亞灣區公安分局立即響應,各部門協同配合,應急處置措施得當;但未按照規定及時向大亞灣區總值班室上報突發事件相關情況,突發事件信息報送工作存在遲報現象。
3.大亞灣區應急管理局接到事故信息后,迅速派員趕赴事故現場開展處置,應急響應及時,應急處置措施得當,突發事件信息報送工作及時、有效。
4.事故發生后,大亞灣區城鄉建設和綜合執法局應急響應及時,突發事件信息報送工作及時、有效。
5.事故發生后,西區街道辦事處各部門協同配合,立即開展應急處置,應急處置措施得當,應急處置有效;但未按照規定及時向大亞灣區總值班室上報突發事件信息,突發事件信息報送工作存在遲報現象。
文軒居公司與死者李*家屬仍就賠償事宜在商談,暫未收到社會不良影響或群體性上訪事件的情況報告。
根據現場勘查、檢驗檢測和對相關人員筆錄問詢,本次事故的直接原因是:當事人李*在進行墻面加固劑噴涂作業時,噴涂機漏電致其觸電身亡。
1.當事人李*被發現時,身體無外傷等外觀異常情況;現場救援的泥水工查應德在拿開噴槍時,感到有電流導致的手麻情況,據此推斷,噴涂機設備在使用過程中可能會存在漏電情況。
2.作業機械設備及臨時用電存在多項安全隱患,如噴涂機故障漏電,未能有效防止觸電事故發生:施工臨時用電未設專用開關箱[1],現場使用只接兩芯線的插座盒代替專用開關箱,未設置漏電保護開關[2]、未接通PE線[3];噴涂機設備用電與接電線路不匹配,噴涂機自帶三腳插座頭,使用時插在只接有兩芯線的插座頭上,該情況下,噴涂機設備的金屬外殼未能做保護接零[4]。
3.事故調查組委托專業檢測機構(惠州市安富電氣消防安全檢測有限公司)于7月16日對現場相關配電線路、設備進行了檢測,檢測公司出具的《檢測報告》(報告編號:AFDQ202407171762)列出了以下隱患項:1.未安裝漏電保護開關;2.設備未連接地線,外殼帶電;3.連接線插座未安裝地線;4.電動噴涂機絕緣層損壞,產生殼體帶電。
4.當事人李*作業環境為房間客廳內,作業時站立在地面,使用噴涂機對墻面進行噴涂,除觸電隱患外,無其他易發事故隱患。
5.根據區公安分局新西派出所《關于“20240702非正常死亡”警情的處置情況說明》:根據法醫現場尸檢,死者胸前部有類似電流斑的損傷,其余未見損傷,懷疑觸電死亡。
1.文軒居公司安全生產管理不到位。其未制定實施相關安全生產管理制度[5],未對作業人員進行安全生產教育培訓[6],未實際配備專職電工開展現場巡查管理[7](辦理裝修許可所用的電工證件持有人已離職);對裝修作業現場的安全管理不到位[8],未使用符合安全要求的臨時用電開關箱,未發現作業人員違規用電情況。
2.桂香園物業公司在辦理桂香園20棟2203室“裝修施工許可證”時,未嚴格審核電工資質,讓資格證過期的人員從事水電安裝工程;未核實裝修工程臨時用電是否符合安全要求就通電施工。日常巡查流于形式,未發現臨時用電存在隱患。
3.當事人李*使用存在安全隱患的噴涂機,未對噴涂機進行有效維護保養及安全隱患排查。
根據《惠州大亞灣經濟技術開發區管理委員會城鄉建設和綜合執法局職能配置和人員編制方案》《關于明確惠州大亞灣經濟技術開發區管理委員會城鄉建設和綜合執法局工作組職責的通知》,區城鄉建設和綜合執法局負責物業管理和房地產中介行業的監督管理工作。負責城鄉規劃管理、城鄉建設、市容環境衛生、市政、城市綠化管理、住房保障、物業、房地產市場、城鎮燃氣、人民防控、住宅室內裝飾裝修、危險房屋管理方面違法違章行為的日常巡查檢查。
區城鄉建設和綜合執法局于2023年5月22日組織全區物業小區負責人進行了《大亞灣區物業管理區域有限空間及室內裝修安全管理》培訓工作,后續還向全區物業小區下發了三份關于加強裝修管理的通知,分別是2023年5月14日印發的《關于加強物業小區室內裝飾裝修安全管理工作的通知》、2023年6月19日印發的《關于進一步加強物業小區室內裝飾裝修安全管理工作的通知》以及2023年8月9日印發的《關于進一步加強城市房屋室內裝飾裝修安全管理的通知》,督促物業企業加強室內裝飾裝修安全管理。
未嚴格落實《惠州市人民政府關于鄉鎮街道實行綜合行政執法的公告》規定:縣級相關行政執法部門要主動協調銜接,加強對鎮街綜合行政執法工作的業務指導和專業培訓。督促、指導各街道辦對室內裝飾裝修工程監管工作不力。
根據《惠州大亞灣經濟技術開發區各有關單位安全生產工作職責》,西區街道辦事處要根據2020年印發的《惠州市人民政府關于鄉鎮街道實行綜合行政執法的公告》,按照職責分工,負責轄區內行使對職業衛生、市容環境衛生管理、城市建設及燃氣管理、城市綠化管理、市政管理、住宅室內裝飾裝修等方面的法律、法規、規章規定的行政處罰及相關的行政檢查、行政強制職能。
2023年1月份至今,西區街道辦事處持續對轄區內住宅小區內違規建筑開展整治管控工作,通過運用快速拆除工作機制,共計拆除在建違規建筑86宗,拆除總面積約2713.67m2。2024年以來,西區街道辦事處發動物業管理方轉發推送安全生產專項工作的宣傳視頻及提醒16次,要求物業單位加大巡查力度,對相關作業人員定期培訓教育、開展應急演練等工作。出動264人次對75個物業小區開展有限空間、防風防汛應急物資、消防等巡查工作,督促物業小區做好安全隱患排查及整改工作。
未嚴格落實《惠州市人民政府關于鄉鎮街道實行綜合行政執法的公告》規定:行政處罰權調整實施后,與之相關的行政強制措施權、行政檢查權由鎮街一并實施。對轄區內住宅室內裝飾裝修工作行政檢查工作不到位。
督促、指導各街道辦開展住宅室內裝飾裝修監管工作不力。
2.西區街道辦事處
對轄區內住宅室內裝飾裝修工作行政檢查工作不到位;未按照規定及時向大亞灣區總值班室上報突發事件相關情況,突發事件信息報送工作存在遲報現象。
3.區公安分局
未按照規定及時向大亞灣區總值班室上報突發事件相關情況,突發事件信息報送工作存在遲報現象。
文軒居公司安全生產管理不到位,未建立健全安全生產管理制度[9],未對作業人員進行安全生產教育培訓[10],未實際配備專職電工開展現場巡查管理[11](辦理裝修許可所用的電工證件持有人已離職);對裝修作業現場的安全生產管理不到位[12],未設置符合要求的臨時用電開關箱,未發現作業人員違規用電情況和相關安全隱患。
桂香園物業公司未嚴格審核電工資質,讓資格證過期的人員從事水電安裝工程;未核實裝修工程臨時用電是否符合安全要求就通電施工。日常巡查流于形式,未發現臨時用電存在安全隱患。
李*,房屋裝修油漆工人,安全意識不足、風險辨識能力薄弱,使用與自有電動噴涂機不匹配的插座線,未有效檢查辨識電動噴涂機存在漏電隱患,對事故的發生負有直接責任,鑒于其在事故中死亡,建議不予追究其責任。
范*,男,文軒居公司現場監理,未履行現場安全負責人職責,未發現臨時用電未安裝漏電保護開關,未對當事人李*進行安全交底,現場施工未到場監護。對事故發生負有責任,由公安機關作進一步偵查。
1.文軒居公司安全生產管理不到位,對事故的發生負有責任,建議由區應急管理局依據《中華人民共和國安全生產法》第一百一十四條規定[13]依法進行行政處罰。
2.桂香園物業公司安全監管不嚴格,未嚴格審核電工資質,讓資格證過期的人員從事水電安裝工程;未核實裝修工程臨時用電是否符合安全要求就通電施工;日常巡查流于形式,未發現臨時用電存在安全隱患。建議由區城鄉建設和綜合執法局依法給予處理。
(四)對事故責任人員處理建議
蔡*文,女,文軒居公司法定代表人,未正確履行主要負責人安全生產職責,對事故負有責任,建議由區應急管理局依據《中華人民共和國安全生產法》第九十五條[14]規定依法進行行政處罰。
對于事故調查過程中發現的政府部門公職人員履職不當的問題及相關材料,移交大亞灣區紀檢監察工委處理。
責成區城鄉建設和綜合執法局、西區街道辦事處、區公安分局向區管委會作出深刻書面檢查。
(一)從業人員安全意識不足、風險辨識能力薄弱,未對自由的電動設備進行有效維護保養及安全隱患排查。使用電動設備時未仔細排查臨時用電安全。
(二)裝修公司安全生產主體責任落實不到位,安全隱患未排查,現場管理缺失。未對從業人員安全交底。
(三)物業公司安全監管不嚴格,日常巡查走過場,未正確落實監管責任。
八、整改建議和防范措施
為深刻吸取此次事故教訓,舉一反三,及時采取措施,堵塞漏洞,防止類似事故發生,各有關單位應嚴格按照“管行業必須管安全、管業務必須管安全、管生產經營必須管安全”的原則,切實加強本行業領域的安全監管。結合本次事故情況,提出以下建議措施:
(一)壓實企業安全生產主體責任,確保施工安全
一是文軒居公司作為安全生產主體責任單位,要嚴格遵守和執行安全生產法律法規與技術標準,建立健全公司安全管理制度,配備專職電工;公司主要負責人、現場管理人員和專職電工要加強對作業現場的安全檢查,及時排除安全隱患;要加強對從業人員的安全教育培訓,切實提高從業人員的安全意識和安全技能水平;二是桂香園物業公司要嚴格管理裝修報備事項,加強排查裝修施工現場實際與辦理報備手續資料、人員證件不符的情況,采取督促整改、不予送電或扣罰違約金等措施,有效防范消除電工不在崗、專用電箱未接通使用和現場安全防護措施未落實等隱患問題。
(二)強化行業、屬地安全監管責任,遏制同類事故發生
區城鄉建設和綜合執法局、各街道辦要牢固樹立紅線意識和底線思維,嚴格執行《惠州市人民政府關于鄉鎮街道實行綜合行政執法的公告》,落實監管責任,堅決防范化解室內裝飾裝修安全風險。行業主管、屬地管理部門一是要進一步增強安全生產工作的責任感和緊迫感,進一步壓實行業、屬地安全監管責任;二是要強化室內裝飾裝修工程監管力度,提升監管技術力量及專業水平,迅速開展大亞灣區室內裝飾裝修安全專項整治行動,針對項目施工特點,督促相關企業強化用電作業、高處作業、動火作業等特殊作業的安全管理,消除監管盲區、堵塞管理漏洞;三是要將事故通報全區裝修公司和物業公司,要求深刻吸取事故教訓,舉一反三,加強有用電作業的裝修項目安全監督管理,督促相關責任主體單位加強巡查檢查,強化隱患排查整治,消除生產安全風險;
(三)建立健全應急信息聯動機制,進一步規范突發事件信息報送工作。
各部門、各街道一是要加強消防系統、醫療衛健系統和應急管理系統的應急信息聯動,建立應急信息聯動共享機制。如發現同一類的突發事件,各地各部門需第一時間向總值班室報告,并抄報同級總值班室和應急管理部門。二是要嚴格按照《中華人民共和國突發事件應對法》(主席令第六十九號)、《廣東省突發事件應對條例》等法律法規有關要求執行突發事件信息報送工作,建立健全制度規定,制定完善工作標準,暢通和拓寬信息獲取渠道,提升信息時效和質量,構建運轉高效的值班工作體系,充分發揮值班室上傳下達、聯系左右、溝通內外的運轉樞紐作用,確保政府系統聯絡暢通、運轉高效。
[1] 《施工現場臨時用電安全技術規范》JGJ46-2005,第8.1.3條:“每臺用電設備必須有各自專用的開關箱,嚴禁用同一個開關箱直接控制2臺及2臺以上用電設備 (含插座) ”。
[2] 《建設工程施工現場供用電安全規范》GB50194-2014,第6.4.4條:“末級配電箱進線應設置總斷路器,各分支回路應設置具有短路、過負荷、剩余電流動作保護功能的電器”。《施工現場臨時用電安全技術規范》JGJ46-2005,第8.2.5條“開關箱必須裝設隔離開關、斷路器或熔斷器,以及漏電保護器。當漏電保護器是同時具有短路、過載漏電保護功能的漏電斷路器時,可不裝設斷路器或熔斷器......”
[3] 《施工現場臨時用電安全技術規范》JGJ46-2005,第5.1.4條:“在TN接零保護系統中,PE零線應單獨敷設”,第5.1.10條“PE線上嚴禁裝設開關或熔斷器,嚴禁通過工作電流,且嚴禁斷線”。
[4] 《建設工程施工現場供用電安全規范》GB50194-2014,第8.1.6條“下列電氣裝置的外露可導電部分和裝置外可導電部分均應接地:1.電機、變壓器、照明燈具等I類電氣設備的金屬外殼、基礎型鋼、與該電氣設備連接的金屬構架及靠近帶電部分的金屬圍欄......”;第9.2.2 條:“施工現場電動工具的選用應符合下列規定:......3.當選用I類或Ⅱ類電動工具時,I類電動工具金屬外殼與保護導體(PE)應可靠連接;為其供電的末級配電箱中剩余電流保護器的額定剩余電流動作值不應大于30mA,額定剩余電流動作 時間不應大于0.1s”。《施工現場臨時用電安全技術規范》JGJ46-2005,第5.1.4,第5.2.1條“在TN系統中,下列電氣設備不帶電的外露可導電部分應做保護接零:1.電機、變壓器、電器、照明器具、手持式電動工具的金屬外殼......”
[5] 《中華人民共和國安全生產法》第四條:“生產經營單位必須遵守本法和其他有關安全生產的法律、法規,加強安全生產管理,建立健全全員安全生產責任制和安全生產規章制度,加大對安全生產資金、物資、技術、人員的投入保障力度,改善安全生產條件,加強安全生產標準化、信息化建設,構建安全風險分級管控和隱患排查治理雙重預防機制,健全風險防范化解機制,提高安全生產水平,確保安全生產.......”
[6] 《中華人民共和國安全生產法》第二十八條:“生產經營單位應當對從業人員進行安全生產教育和培訓,保證從業人員具備必要的安全生產知識,熟悉有關的安全生產規章制度和安全操作規程,掌握本崗位的安全操作技能,了解事故應急處理措施,知悉自身在安全生產方面的權利和義務。未經安全生產教育和培訓合格的從業人員,不得上崗作業.......”
[7] 《中華人民共和國安全生產法》第三十條:“生產經營單位的特種作業人員必須按照國家有關規定經專門的安全作業培訓,取得相應資格,方可上崗作業......”;《建設工程施工現場供用電安全規范》B50194-2014,第12.0.6條“接引、拆除電源工作,應由維護電工進行,并應設專人進行監護”;《施工現場臨時用電安全技術規范》JGJ46-2005,第3.2.2條“安裝、巡檢、維修或拆除臨時用電設備和線路,必須由電工完成,并應有人監護......”
[8] 《中華人民共和國安全生產法》第四十一條:“生產經營單位應當建立安全風險分級管控制度,按照安全風險分級采取相應的管控措施。生產經營單位應當建立健全并落實生產安全事故隱患排查治理制度,采取技術、管理措施,及時發現并消除事故隱患。事故隱患排查治理情況應當如實記錄,并通過職工大會或者職工代表大會、信息公示欄等方式向從業人員通報......”,第四十六條“生產經營單位的安全生產管理人員應當根據本單位的生產經營特點,對安全生產狀況進行經常性檢查;對檢查中發現的安全問題,應當立即處理;不能處理的,應當及時報告本單位有關負責人,有關負責人應當及時處理。檢查及處理情況應當如實記錄在案......”。
[9] 《中華人民共和國安全生產法》第四條“生產經營單位必須遵守本法和其他有關安全生產的法律、法規,加強安全生產管理,建立健全全員安全生產責任制和安全生產規章制度,加大對安全生產資金、物資、技術、人員的投入保障力度,改善安全生產條件,加強安全生產標準化、信息化建設,構建安全風險分級管控和隱患排查治理雙重預防機制,健全風險防范化解機制,提高安全生產水平,確保安全生產.......”
[10] 《中華人民共和國安全生產法》第二十八條“生產經營單位應當對從業人員進行安全生產教育和培訓,保證從業人員具備必要的安全生產知識,熟悉有關的安全生產規章制度和安全操作規程,掌握本崗位的安全操作技能,了解事故應急處理措施,知悉自身在安全生產方面的權利和義務。未經安全生產教育和培訓合格的從業人員,不得上崗作業.......”
[11] 《中華人民共和國安全生產法》第三十條:“生產經營單位的特種作業人員必須按照國家有關規定經專門的安全作業培訓,取得相應資格,方可上崗作業......”;《建設工程施工現場供用電安全規范》B50194-2014,第12.0.6條“接引、拆除電源工作,應由維護電工進行,并應設專人進行監護”;《施工現場臨時用電安全技術規范》JGJ46-2005,第3.2.2條“安裝、巡檢、維修或拆除臨時用電設備和線路,必須由電工完成,并應有人監護......”
[12] 《中華人民共和國安全生產法》第四十一條:“生產經營單位應當建立安全風險分級管控制度,按照安全風險分級采取相應的管控措施。生產經營單位應當建立健全并落實生產安全事故隱患排查治理制度,采取技術、管理措施,及時發現并消除事故隱患。事故隱患排查治理情況應當如實記錄,并通過職工大會或者職工代表大會、信息公示欄等方式向從業人員通報......”,第四十六條:“生產經營單位的安全生產管理人員應當根據本單位的生產經營特點,對安全生產狀況進行經常性檢查;對檢查中發現的安全問題,應當立即處理;不能處理的,應當及時報告本單位有關負責人,有關負責人應當及時處理。檢查及處理情況應當如實記錄在案......”。
[13] 《中華人民共和國安全生產法》第一百一十四條:發生生產安全事故,對負有責任的生產經營單位除要求其依法承擔相應的賠償等責任外,由應急管理部門依照下列規定處以罰款:(一)發生一般事故的,處三十萬元以上一百萬元以下的罰款。
[14] 《中華人民共和國安全生產法》第九十五條:生產經營單位的主要負責人未履行本法規定的安全生產管理職責, 導致發生生產安全事故的,由應急管理部門依照下列規定處以罰款:(一)發生一般事故的,處上一年年收入百分之四十的罰款。
相關稿件:
主辦單位:惠州大亞灣開發區黨工委管委會綜合辦公室
網站標識碼:4413900013
備案編號:粵ICP備09027684號 |
粵公網安備
44139902100035號
溫馨提示:為達到最佳瀏覽效果,建議使用火狐、谷歌瀏覽器,或者IE9.0以上、360瀏覽器7.0(極速模式)
網站地圖
| 您是第